Surrey Mayor Doug McCallum and representatives from PCI Developments, TransLink, and the Downtown Surrey Business Improvement Association marked the official opening of the King George Hub with a ribbon-cutting ceremony this Thursday, marking the official start of a new era in Downtown Surrey.
Also announced in conjunction with the opening was a partnership between PCI Developments, the developers of the King George Hub, and TransLink. Beginning in October and running for three months, PCI Developments will purchase 250 fare cards, each pre-loaded with $150, and then give them away to people who live and work at King George Hub. Those who receive the fare cards will then be surveyed before and after the program, and their transit usage will be tracked -- with their permission -- during the three-month period.

The purpose of the program is to "study the impacts of providing subsidized transit," TransLink said in a press release, and to determine whether or not participants in the program were more likely to use transit as a result of subsidized transit. "This data will help TransLink and municipalities draw conclusions about the benefits of subsidizing transit use for transit-oriented communities across the region."
"Transit-oriented communities" is a term TransLink has been emphasizing for over a decade, particularly involving projects related to the SkyTrain. The idea with transit-oriented design is to create communities that have a high degree of density -- retail space, office space, residential space all packed together in a central location. The thinking is that such communities would encourage people to switch from driving to taking public transit, which would provide societal benefits such as a reduction of greenhouse gases as well as personal benefits such as more walking.
READ: Transit-Oriented Design and Vancouver’s Affordable Housing Problem
An example of such communities is the Marine Gateway hub next to Marine Drive Station on the Canada Line, which was also developed by PCI Developments. In a previous interview with STOREYS, the Ministry of Transportation said that the new 196 Street Station to be added as part of the Surrey-Langley SkyTrain extension, which begins at King George Station, will also be designed with this emphasis. A big aspect of such communities is encouraging public transit use, and the Surrey King George Hub transit-subsidy study is now seeking to understand that further.
Surrey King George Hub
PCI Developments purchased the land 10 years ago, when it was a single oversized plot consisting of a parking lot and obsolete buildings, according to an official press release announcing the developments opening. A total of over $1B has since been invested into the land, transforming it into the the massive mixed-use urban centre it now is, and which won the 2022 NAIOP Commercial Real Estate Award for Best Mixed-Use Development.
Once fully completed, the massive King George Hub, right next to the Expo Line's King George SkyTrain Station, will include a total of 370,000 sq. ft of office space; 140,000 sq. ft of retail space; 1,624 condominiums; and 771 rental units.
King George Hub: Office Space
The 10-storey office building, which completed construction way back in 2015 and is now the Coast Capital Savings Headquarters, was actually the first phase of development.
Down the street is the 15-storey building called Hub 9850, which is named after its 9850 King George Boulevard address, and currently houses tenants such as Westland Insurance, Spaces, SPI Logistics, Urban Systems, as well as government offices of the Province of British Columbia and Government of Canada.
According to current leasing info, however, floors six through eight are currently unoccupied and available to be leased through Colliers International.


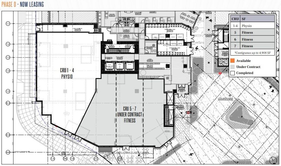
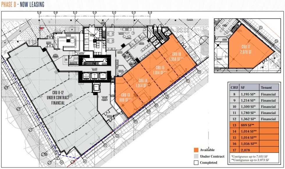
King George Hub: Retail Space
A large portion of the retail space has also already been completed and is now up and running, including a TD Bank, Save-On Foods, and Rexall, as well as food establishments like Tim Horton's, A&W, and Chopped Leaf. A majority of retail space is still available in the Phase D area, however, which includes several units just under 2,000 sq. ft, according to retail leasing info published by Marcus & Millichap.




King George Hub: Rental Units
There there's the 34-floor rental building at 13639 George Junction, officially called The Line, behind Coast Capital Savings. The Line consists of one-bedroom, two-bedroom, and three-bedroom units. According to The Line's leasing portal, one-bedrooms are around 500 sq. ft, with rents just around $2,000. Two-bedroom units go up to about 750 sq. ft and $2,500, and three-bedrooms about 1,000 sq. ft and $2,850. As of now, it appears that only a single two-bedroom unit is available.
All the units are secured rental homes, and have been "designed to be as practical, convenient and liveable as the world around it", according to Warrington Residential, who manages the property. Interiors feature vinyl flooring, kitchens are equipped with premium appliances, and the bathroom is topped off with chromed fixtures. Units are also equipped with large windows, which can offer views of the North Shore Mountains and Mount Baker, depending on where your unit is.
Residents will also have access to the rooftop entertainment lounge, as well as amenities such as a theatre, gym, indoor and outdoor dining spaces, workspaces, a kids playground, and more, on the third-floor podium.
READ: 3-Building Burrard Place Residential & Office Development in Vancouver Now Full
King George Hub: Condominiums
Last but not least are the condos. All in all, there will be two sets of two buildings, all of which have already sold out.
The first two were Hub One and Hub Two, on 13615 Fraser Highway and 13655 Fraser Highway, which are 40 storeys and 29 storeys, respectively, and total to 738 residences. Hub One units were reportedly sold out within 10 days, and Hub Two in four weeks, and construction on both buildings were completed in 2021.

The second pair of buildings, Plaza One and Plaza Two, are on 9808 King George Boulevard, between The Line and Hub Hub Two. Plaza One is 40 storeys with 439 units and Plaza Two is 43 storeys with 447 units, and both towers will consist of one-bedroom and two-bedroom units, all of which have sold out. Construction is currently ongoing and slated to finish in 2025.
Additionally, a fifth phase will add 400 more rental units. It is slated to begin construction in early 2023 and finish in 2026.

According to Statistics Canada data published in early 2022, Surrey is the 11th largest municipality, by population, in all of Canada. The Whalley area of Surrey -- where the King George Hub sits -- has one of the largest populations within Surrey, according to the City's estimations, which ballparks the population at about 120,000 in 2021. That number is expected to get close to 200,000 by 2051.
CBRE, the world's largest real estate services firm, said this June that Surrey "could supplant downtown Vancouver [as] the top spot for investors, residents and businesses in the near future." Furthermore, CBRE's Vice Chairman of Capital Markets Jim Szabo says that "with the extension of the SkyTrain, you’re going to see more growth, especially along the transit line."
That growth trajectory is in large part due to the increased amounts of development Surrey has seen in the last decade, and even more so recently. Szabo attributes that to the city's open-mindedness as it relates to development. “One of the more recent policy amendments that they’ve come up with is a fast-tracked rezoning process, which is unheard of in any other municipality," he said. "This will make Surrey a magnet for opportunity and an increasingly significant player in British Columbia, and Canada in general.”



























