After a few starts, stops, and a complex legal proceeding, Peterson is turning the page and starting a new chapter at its Burnaby Lake Village master-planned community, beginning with the name: the project has been rebranded as Blake Village.
The project is set for the 19-acre site at 6800 Lougheed Highway, directly adjacent to the Millennium Line SkyTrain’s Sperling-Burnaby Lake Station. The property was formerly home to an industrial facility occupied by Saputo before it was sold to Peterson and Create Properties in 2018 for $209 million.
Peterson and Create Properties received final approval for their master plan rezoning application in July 2024, but the project was placed under creditor protection a few months later, as first reported by STOREYS, after disputes between the two partners reached an impasse, stalling the project and forcing the lender — a syndicate consisting of RBC, TD Bank, BMO, and Scotiabank — to step in.
That proceeding concluded last year with Peterson buying out Create Properties. According to court documents pre-buyout, Peterson’s equity in the project amounted to $35,292,000, while Create Properties’ equity amounted to $33,908,000, translating to a 51% and 49% ownership split. Post-buyout documents noted that Peterson had entered into a new creditor agreement with the lender syndicate for a $207 million land loan facility that also included a $19 million pre-development loan facility and a $13 million letter of credit facility.
The Revised Plan
Since the project exited creditor protection, the City of Burnaby has adopted a new height-based development framework that defines development potential by storeys rather than by complex floor space ratio calculations. Then, in December 2025, the City adopted its new Burnaby 2050 Official Community Plan.
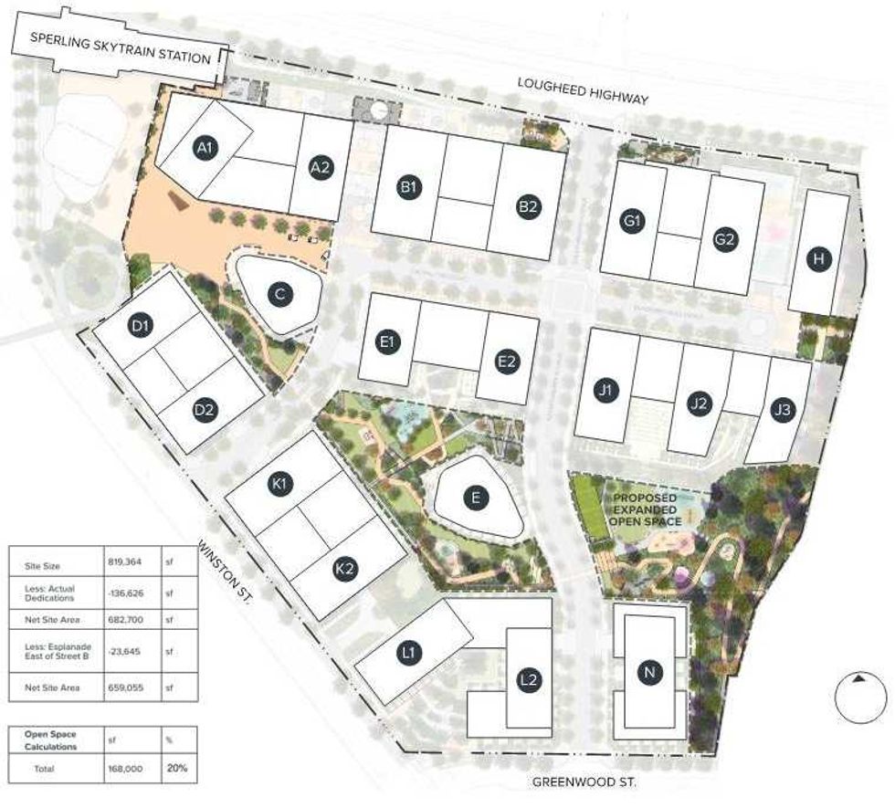
Translated to the height-based development framework, the previously-approved master plan was for 355 storeys across 22 buildings, amounting to around 4,750 residential units. The updated rezoning application now includes 446 storeys across 21 buildings, totalling to an estimated 5,250 residential units.
“While the revised concept exceeds the height provisions of the Bainbridge Urban Village Community Plan, it remains generally consistent with the plan’s design guidelines, and no amendments are required because the updated OCP now supersedes the Bainbridge Urban Village Community Plan,” said City staff in a recent planning report.
“The amended Master Plan continues to uphold the overarching vision established under the previously approved Master Plan, focused on creating an accessible, amenity-rich mixed-use destination on transit that serves as the central hub of the Bainbridge Urban Village,” staff added. “This vision emphasizes a human-scale, fine-grained urban village where individuals and families can establish roots.”
Notably, a previously planned tower, Building M, has been removed and will instead become open space for the community. The new height-based framework results in more developable height and Peterson is distributing the additional height across multiple buildings, with no building receiving more than 10 additional storeys.

As a result of these changes, the 21 buildings range from 13 storeys to 30 storeys, with a site-wide average height of around 20 storeys; the taller buildings are located on the western side of the site, closer to the SkyTrain station. This approach “provides intentional height variation, avoids a uniform skyline, and allows height to be concentrated where it best supports urban design, placemaking, and public-realm objectives,” said City staff.
Phase One
The phasing plan for Blake Village remains unchanged, however new details are now available.
Build out is split into five major phases, beginning with Phase One at the northeast corner of the site (which shares a boundary with the Burnaby Lake Heights master-planned project Create Properties is undertaking on its own.) This first phase is split into two sub-phases, with each of Phase 1A and 1B consisting of three buildings. Site-specific rezoning applications were previously advanced for both 1A and 1B, with 1A receiving third reading (conditional approval) in July 2024 and 1B receiving second reading in August 2024.

Peterson had also submitted a rezoning application for Phase 2A in June 2024, but all three site-specific rezoning applications were “paused due to the viability challenges of delivering the previously approved density into a challenged market, whilst also trying to incorporate new regional and municipal development charges introduced in 2024,” said staff.
New site-specific rezoning applications will be required and will also need to align with the aforementioned policy changes, as well as other changes such as new ACCs. According to the City, Peterson submitted a new application for Phase 1A — 416 strata units and 87 rental units — last year, and was granted third reading in December.
The City says Phase 1A was advanced ahead of this revised master plan application “to expedite early housing delivery” and Phase 1B may also advance before the revised master plan application is adopted, but all remaining phases will not proceed until after the revised master plan application has received final adoption.
The housing will be a yet-to-be-finalized mix of market rental, non-market rental, and strata units, and additional open space will be provided in response to the additional amount of density allowed under the revised master plan application. The amount of open space has now been increased to 167,917 sq. ft. As part of the project, surrounding roads will also be upgraded, and new internal roads — named Cattail Crescent, Salmonberry Avenue, Blackbird Boulevard — will be constructed.

Commercial uses — retail space, cafés, restaurants, and office space — are planned along Lougheed Highway, Winston Street, and the new internal streets, to serve the neighbourhood and transit users passing through. Childcare facilities are also proposed as part of Phase 1A (Building G), Phase 3A (Building A), and Phase 4 (Building L), with potential additions as each phase progresses.
Site preparation has already begun at 6800 Lougheed Highway, Peterson tells STOREYS, with work on clearing the site recently commencing.
Instead of a traditional demolition, however, the existing industrial building — approximately 215,000 sq. ft — is being deconstructed, with nearly 500,000 pounds of Douglas Fir lumber, timber, and glulam beams set for a new Metro Vancouver District Energy facility that services Burnaby and Vancouver.





















