On Monday, Surrey City Council considered a new rezoning application for two high-rise residential towers, at a site that's almost visible from Surrey City Hall.
The subject site of the proposal is 13265 104 Street, near Kwantlen Park Secondary School and a seven-minute walk west from Surrey City Hall.
The site is currently occupied by the three-storey Elizabeth Manor apartment building constructed in 1971, according to BC Assessment, which values the property at $19,887,000.
The property is legally owned by Accorde WCPG Lots 12 Ltd. and Accorde WCPG Lots 12 (B) Ltd. It is beneficially owned by West Fraser Holdings Ltd., also known as West Fraser Developments.
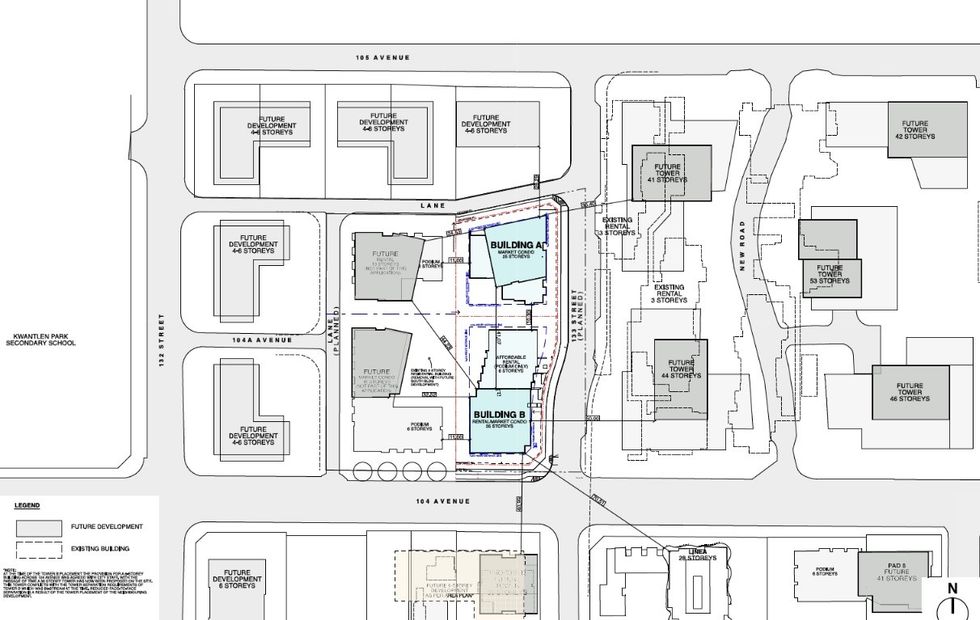
West Fraser Developments is seeking to rezone the site from RM-45 (Residential) to CD (Comprehensive Development) and is proposing a 25-storey and 35-storey residential tower atop six-storey podiums, with a total of 561 residential units. The site was previously owned by Western Canadian Properties Group XII Limited Partnership Ltd., who was planning a 21-storey and 26-storey tower in 2020, but the property has since changed hands, although the design is largely the same, other than the increased heights.
The 25-storey tower located at the northern half of the site will house 207 strata units, consisting of five studio units, 117 one-bedroom units, and 85 two-bedroom units.
The 35-storey tower located at the southern half of the site will then house 297 strata units, consisting of 30 studio units, 147 one-bedroom units, and 120 two-bedroom units. Additionally, this building will also house 57 below-market rental units, replacing the 57 units within the existing Elizabeth Manor apartment building.

According to a City planning report, West Fraser Developments currently own and operate over 400 rental units, with 500 more in their pipeline, and will be offering the units at 10% below current average rents as defined by the CMHC.
"The applicant has agreed to offer the units within the proposed new rental building at these below-market rental rates to existing tenants if they opt for the right of first refusal, or to any new tenants, for the duration of the 60-year Housing Agreement," staff said.
The developer, who purchased the property when 16 of the 57 units were vacant, has provided a Tenant Assistance and Relocation Plan, but staff also noted, however, that there was a recent issue with the developer and the existing tenants.
"In May 2024, the applicant inadvertently sent evictions notices to the residents, anticipating demolition prior to Final Approval, contrary to the requirements of the Residential Tenancy Act (RTA)," said staff. "It has since been clarified to the applicant that the City can accept a bond for the demolition, as the Province only allows for eviction notices after a permit has already been issued, with a minimum of four months notice. The eviction notice has since been retracted by the applicant, and the applicant has committed to complying with the requirements of the RTA."

For the future residents of the building, 1,896 sq. m of indoor amenity space will be provided across both buildings, including a social lounge, gym, kitchen, reading room, rooftop lounge, and meeting room. Additionally, 2,056 sq. m of outdoor amenity space will be provided across both buildings. Both totals are more than what is required by the City for a project of this size.
For the developer, this project will be subject to both Tier 1 community amenity contributions (CACs) and Tier 2 CACs, the latter of which will not apply to the rental housing component. The project is also subject to the City's Affordable Housing Contribution, but again the rental component will be exempt.
On Monday, Surrey City Council granted a first and second reading to the project, and also forwarded the project to a public hearing scheduled for Monday, July 8.
- Three Towers Up To 37 Storeys Proposed Near Surrey's Gateway Station ›
- ML Emporio Moving Forward With 44-Storey Tower Next To SFU Surrey ›
- 41-Storey Rental Tower Proposed Next To Surrey Memorial Hospital ›
- Wesgroup Planning Three 55-Storey+ Towers For Surrey "Civic District" ›
- RioCan Revises Plans For 58-Storey Midtown Condo ›





















