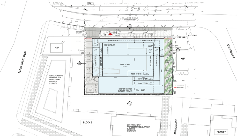
Just over a month after announcing they had closed on the sale of the site, investment manager Fengate Asset Management and development and construction company High Rise Group have advanced plans to bring a 44-storey purpose-built rental to 4, 6, 8, and 10 Beamish Drive. The site in Etobicoke has already been rezoned for the proposed tower, and now the developer is seeking Site Plan Approval, which gives the City a chance to review the technical design and functional details of the project.
Fengate announced the acquisition of the site on July 21, describing it in a press release as a “landmark” and “transit-oriented parcel” steps from the Kipling Transit Hub. “Located at the intersections of Dundas Street West, Bloor Street West, and Kipling Avenue, the site is well positioned with direct access to TTC subway lines, GO Transit, and MiWay bus services, providing seamless connectivity across the Greater Toronto and Hamilton Area (GTHA),” the release said.
According to a series of planning documents that went to the City in mid-August, Fengate is looking to bring around 343,067 sq. ft of total gross floor area (GFA) to the site, inclusive of around 340,484 sq. ft of residential GFA and 2,583 sq. ft of retail GFA.

For its residential part, 530 rental units are planned — marking a slight increase over the 509 units the site is currently zoned for — which are to be broken down into 39 bachelor units, 261 one-bedrooms, 75 two-bedrooms, and 55 three-bedrooms. In addition, around 22,820 sq. ft of amenity space — to be split evenly between indoor and outdoor on the ground, second, and mechanical penthouse levels — 77 parking spots, and 212 bicycle parking spaces have been proposed.
Renderings prepared by WZMH Architects show the tower anchored by a six- to nine-storey podium. Projecting balconies are shown on the tower facades.
Returning to Fengate’s July 21 press release, it specifies that the development slated for 4-10 Beamish “will complement the broader Six Points Redevelopment Plan, a transformative initiative by the City of Toronto that aims to improve roadways, pedestrian and cycling infrastructure, and create mixed-use destinations such as the new Etobicoke Civic Centre, which includes a library, art gallery, childcare centre, and recreation facilities.”
“This development represents a significant step forward in our commitment to delivering dynamic, transit-connected rental housing in vibrant urban communities,” said Fengate Real Estate President Jaime McKenna in the release. “With its proximity to major transit, retail, and civic amenities, 4-10 Beamish Drive is poised to become a cornerstone of the Six Points neighbourhood revitalization, creating more jobs and bringing more homes to Toronto’s housing market.”
Other particulars of the proposal include around 129,166 sq. ft of new parkland dedication, including Dunkip Park, and plans to meet the Toronto Green Standard for sustainable building design and LEED Silver certification.
Notably, Fengate is managing the Beamish Drive investment on behalf of the LiUNA Pension Fund of Central and Eastern Canada (LiUNA) — the firm it's also working with for The Dennis, a new purpose-built rental community and one of the first approved projects to break ground under the City’s Purpose-built Rental Housing Incentives Stream approved in November 2024. The project will bring 448 new units, including 89 affordable homes and six rental replacement units, to the Mount Dennis neighbourhood of Toronto. Fengate, The Hi-Rise Group, and LiUNA broke ground on The Dennis last Wednesday.





















